Villa in the Tuscan mountains north of Lucca for sale
Bagra, Tiglio
Set on 20 acres of sunny hillside in the Tuscan mountains north of Lucca and restored in 2001
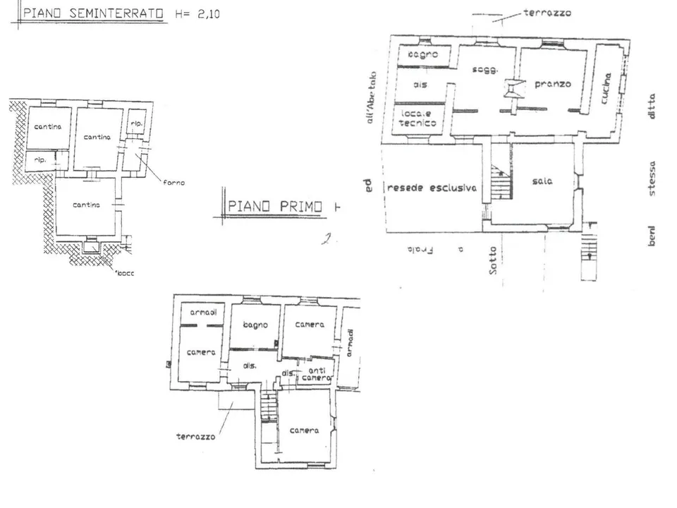
The light and spacious house, 300 sqm, comprises:
on the ground floor, entrance into a spacious corridor that leads onto a living room with a double sided fire place that also looks onto the dining room, French windows that open onto the garden.
From this room a smaller room can be reached which at present is being used as a sewing room. Still on the ground floor is a bathroom, a dining room, a kitchen with marble tops and a second living room from which chestnut wood stairs lead up to the first floor.
The boiler room is also situated on the ground floor. On the first floor a large landing with a balcony leads onto a bedroom with space to put in an en-suite or alternatively a walk-in wardrobe. Also on this floor is a bathroom, a double bedroom with a storage room and a second double bedroom which opens on to a covered balcony (an altana).
On the semi-interred level is a fully finished cellar/cantina which includes a living/kitchen area with solid chestnut units and a double bedroom. The semi-interred level hasn’t had any maintenance done for about four years although it has been painted recently.
Most of the furniture will be sold with the house and the barn.
The house also has photovoltaic panels and solar pannels installed and GPL attachments.
For sale with the property is a separate stone building which consists of: entrance on the ground floor by way of a few stone steps into a kitchen/living room with a wood burning stove that heats the whole building. Wooden stairs take us up to the first floor where there is a bathroom with a shower and a double bedroom with French windows that open onto a private grassy area.
There is an out building which is used for storage and has all the fittings to put in water, electricity and heating.
In addition to acres of broad fields, perfect for cultivation, there are more than 30 mature fruit trees, a well tended vineyard of 101 Syrah vines, and chestnut, hazelnut and walnut trees, wild porcini mushrooms in season, and its own abundant pure mountain spring water source, certified for drinking, as well as for irrigation.
The irrigation tank has been restored and is now used as a swimming pool, 1.50m deep and maintains the same depth all over as it doesn’t have a deep end or a shallow end.
Ideally suited for sustainable organic produce and/or animal farming.




Leave a Comment